PHARMA
Réhabilitation d’un site de production pharmaceutique - EXCELVISION Annonay (07)
Client / Maitre d’ouvrage : EXCELVISION
Fabricant de produits ophtalmiques
Missions :
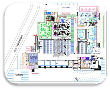
Assistance à Maitrise d’Ouvrage (AMO) pour la réhabilitation d’un bâtiment d’entreposage en bâtiment de production pharmaceutique permettant de produire 480 millions de doses de collyre/an :
- Consolider le schéma directeur du projet global avec les exigences de production.
- Réorganiser les flux logistiques sur le site pour assurer les travaux avec le maintien de l’exploitation.
- Formaliser le DCE des travaux bâtiment et support pour les lots process pharmaceutiques.
- Piloter les réalisations avec les chefs de chantiers (technique, couts, délais, risques) en site occupé.
- Coordination des tests fonctionnels et de la mise en production.

